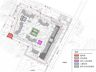
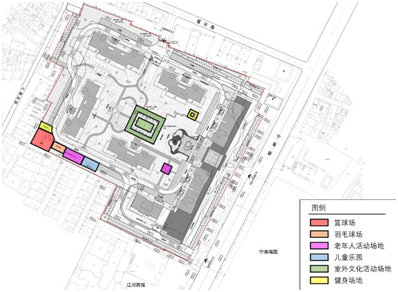
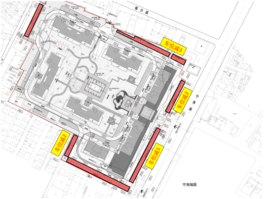
关于宁海盛景项目变更规划方案的公示 由玉溪华地房地产有限公司开发建设的宁海盛景项目,现向我局提出规划方案变更申请。依据《中华人民共和国行政许可法》、《中华人民共和国城乡规划法》、《云南省城乡规划与建设项目公示办法(试行)》等有关法律法规规定,特此公示: 一、名称:宁海盛景 二、类型:规划方案变更批前公示。 三、建设单位:玉溪华地房地产有限公司。 四、建设地点:玉溪市江川区宁海路以西。 五、公示内容: (一)变更内容 1.景观方案深化:变更局部核心区水景为枯山水、优化内部景观路网、调整凉亭位置至4栋北侧山墙,调整后绿地率由36.46%提升至36.48%;2.公共活动场地位置调整:将3栋东侧的一部分老年人活动场地、4栋北侧和5栋南侧之间的羽毛球场调整至项目西南侧,与篮球场等健身场地集中布置;3.地上停车位变更:减少地面车位8个,减少后地上车位数为137个,小区总车位数605,满足1个/户。(二)变更方案审议 宁海盛景项目规划变更方案经2023年7月23日江川区第3期国土空间规划委员会办公室会议审议,拟同意变更。 (三)变更方案 原审批方案: | 规划变更方案: | 
| 
| 
车位变更方案 | 变更前指标表 | 变更后指标表 | 
| 
|
该项目变更方案的公示期限为7天,公示日期:2023年7月25日至 2023年 8月1日。如有意见或建议,请在公示期内向我局提出。 联系电话:(0877)8010631 玉溪市江川区自然资源局 2023年 7月 24日
|