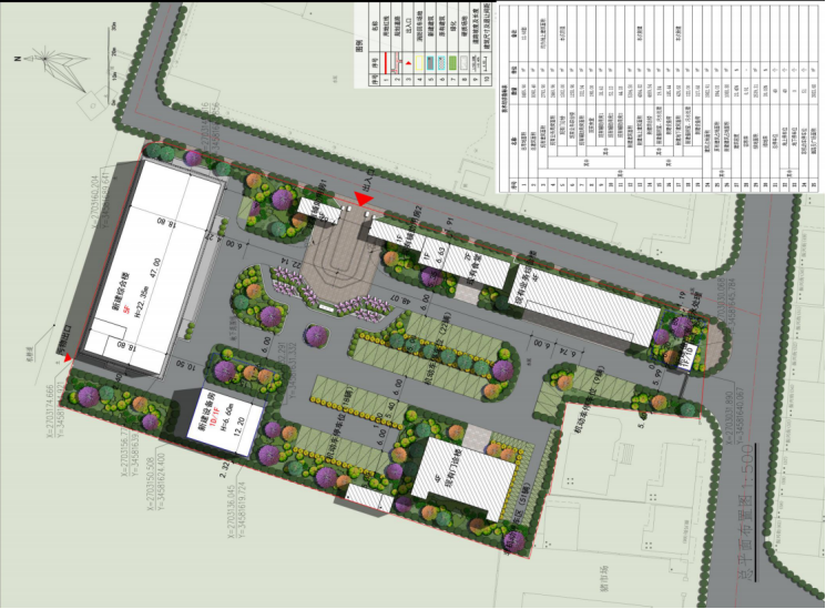
关于玉溪市江川区县域医共体建设项目(江城镇医疗卫生次中心 建设工程)建设工程规划许可证的公示 由玉溪市江川区医共体总医院开发建设的玉溪市江川区县域医共体建设项目(江城镇医疗卫生次中心建设工程),现向我局申请办理建设工程规划许可证。依据《中华人民共和国行政许可法》、《中华人民共和国城乡规划法》、《云南省城乡规划与建设项目公示办法(试行)》等有关法律法规规定,特此公示: 一、名称:玉溪市江川区县域医共体建设项目(江城镇医疗卫生次中心建设工程)。 二、类型:批前公示。 三、公示类别:建设工程规划许可证批前公示。 四、建设单位:玉溪市江川区医共体总医院。 五、建设地点:玉溪市江川区江城镇振兴街 53 号,江城镇卫生院现址内。 六、公示内容: 规划建设用地面积:8455.90平方米; 总建筑面积:8098.40平方米; 现有建筑建筑面积:2793.90平方米; 新建建筑建筑面积:5304.50平方米; 绿地面积:2539.31平方米; 建筑密度:23.45% ; 容积率:0.91; 绿地率:30.03% ; 停车位:机动车位49辆。 七、附图 
现状图 
总平面图 
效果图 该项目公示期限为7天,公示日期:2025年10月4日至 2025年10月10日。如有意见或建议,请于公示期内向玉溪市江川区自然资源局反馈。 反馈意见联系电话:(0877)8010631。 玉溪市江川区自然资源局 2025年10月4日 |