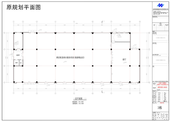
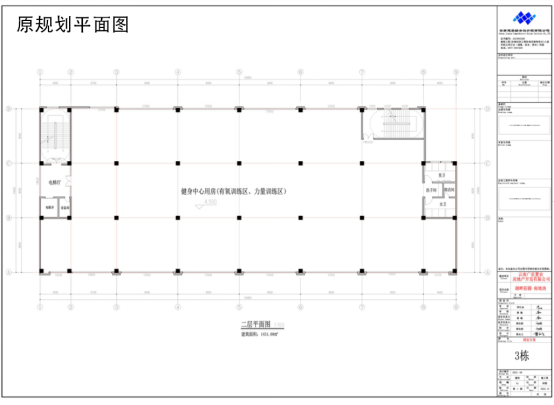
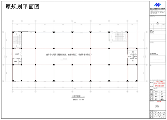
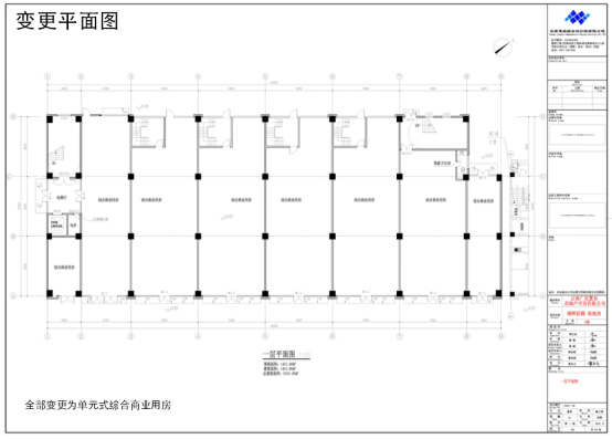
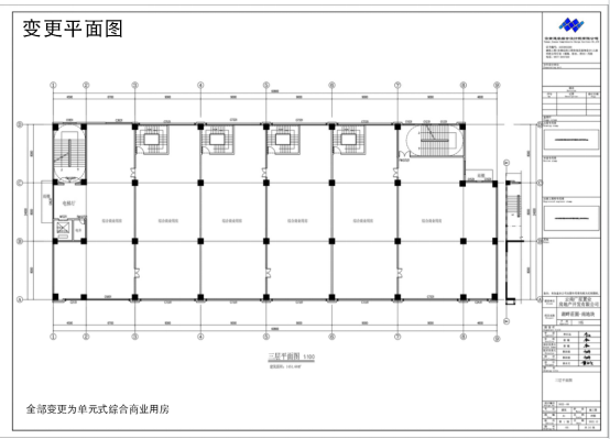
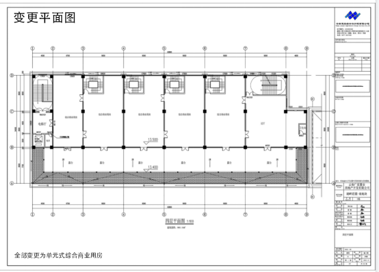
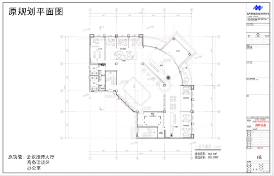
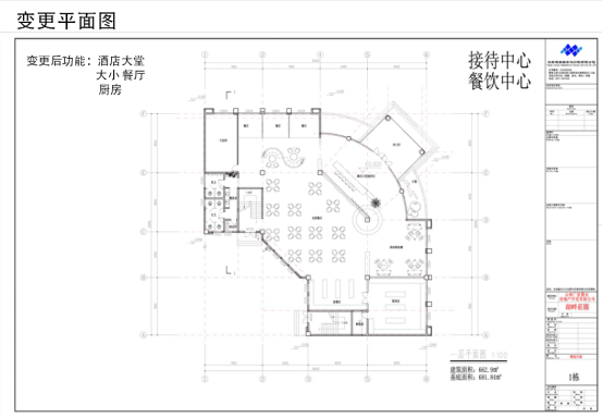
湖畔莊園项目规划变更批前公示 由云南广星置业房地产开发有限公司建设的湖畔莊園项目,现向我局申请规划方案变更。依据《中华人民共和国行政许可法》、《中华人民共和国城乡规划法》、《云南省城乡规划与建设项目公示办法(试行)》等有关法律法规规定,特此公示: 一、名称:湖畔莊園 二、类型:批前公示 三、公示类别:规划方案变更批前公示 四、建设单位:云南广星置业房地产开发有限公司 五、建设地点:抚仙路西侧,渔文化广场南侧。 六、公示内容: 本次规划方案变更严格遵循 “优化功能、提升品质” 的原则,仅对原规划中部分建筑内配套用房布局、业态配比及配套设施进行调整,不更改原批准的总用地面积、总建筑面积、容积率、建筑密度及绿地率、车位、客房数等核心指标,具体变更内容如下: 配套用房布局调整:酒店大堂、餐厅、办公、会议、健身等配套用房设置在1栋;2、3栋变更为综合商业用房并进行房屋内部分隔;4栋酒店客房及服务用房进行局部更改。 七、附图 






















该项目公示期限为7天,公示日期:2025年10月10日至2025年10月16日。如有意见或建议,请在公示期内向我局提出。 玉溪市江川区自然资源局 2025年10月10日 |