关于湖滨上品项目规划方案 变更的公示 湖滨上品项目于2025年4月16日办理建设工程规划许可证(建字第江川区202500003号),项目总建筑面积15633.25平方米,容积率1.59,建筑密度30.35%,绿地率32.02%。2025年12月8日,建设方云南鑫合盛房地产开发有限公司向我局申请规划方案变更。依据《中华人民共和国行政许可法》、《中华人民共和国城乡规划法》、《云南省城乡规划与建设项目公示办法(试行)》等有关法律法规规定,特此公示: 一、名称:湖滨上品项目。 二、类型:规划方案变更批前公示。 三、建设单位:云南鑫合盛房地产开发有限公司。 四、建设地点:玉溪市江川区湖滨路与星云路交叉口西北角。 五、公示内容: (一)变更内容 1.取消原阳台墙墩; 2.将原临街阳台玻璃栏板改为铁艺栏杆。 规划变更后主要经济技术指标保持不变。 (二)变更方案审议 湖滨上品项目规划变更方案于2025年12月19日经江川区国土空间规划和土地储备委员会办公室 2025 年第七次会议审议,拟同意规划变更方案。 (三)变更方案
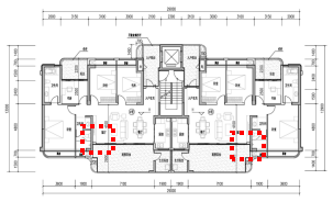
  图1:A型三~六层平面图规划变更前后对比
 
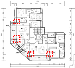
图2:B型二~七层平面图规划变更前后对比

图3:C型二~六层平面图规划变更前后对比  
图4:沿街效果图规划变更前后对比  
图5:内庭效果图规划变更前后对比 该项目变更方案的公示期限为7天,公示日期:2025年12月19日至 2025年12月25日。如有意见或建议,请在公示期内向我局提出。 联系人:朱娇娇(0877)8010631 邮箱:874601498@qq.com 玉溪市江川区自然资源局 2025年12月19日 |